7850 Pinehurst Road Woodbury (MN) 55125
$595,000 Closed
StatusClosed Beds4 Baths3 Living Area3408 YR1981 School District833 DOM6

Public Remarks

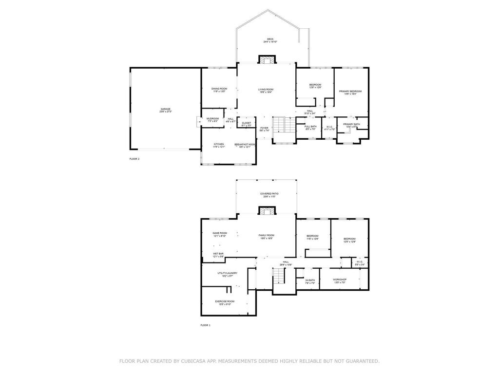
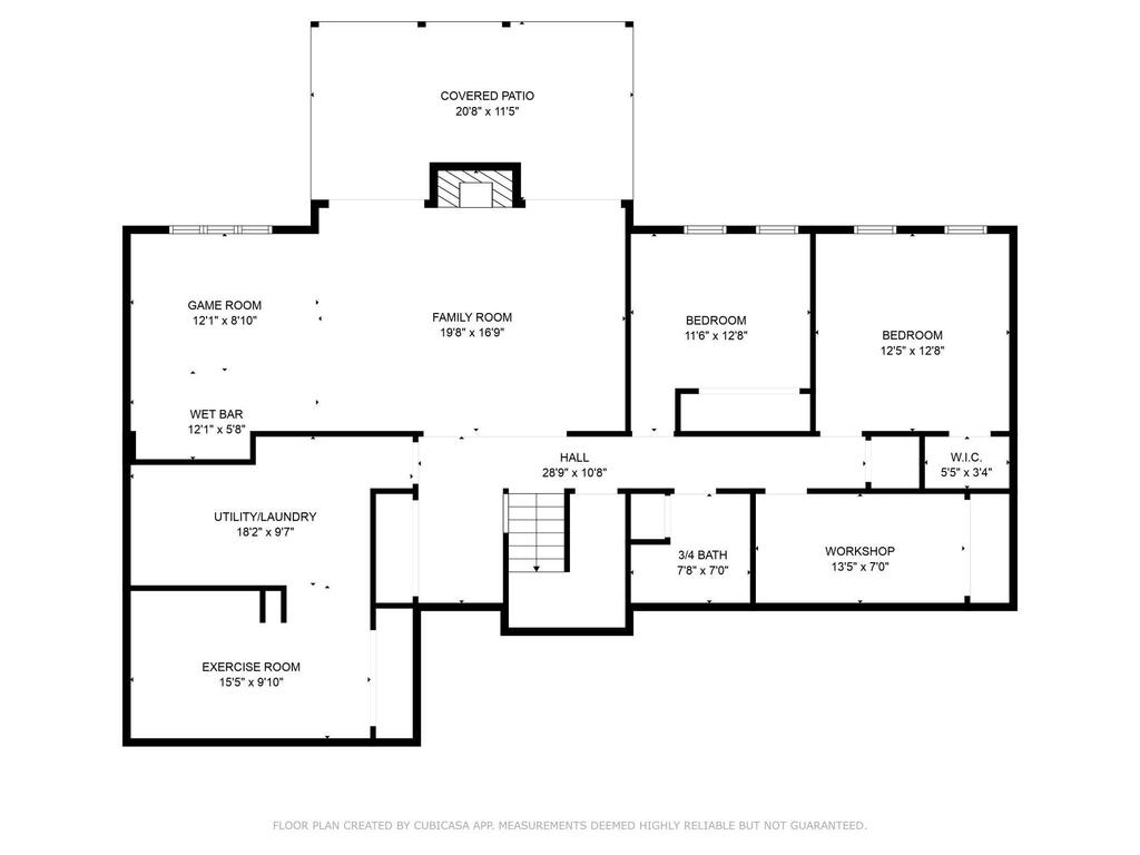
One-level walkout home in the beautiful Evergreen neighborhood of Woodbury greets you with sunny skylight and cozy comforts. Be welcomed by the main level living room with gorgeous built-ins, gas fireplace, gleaming hardwood floors, and access to the large deck overlooking a fully fenced private backyard. The spacious primary suite has a jacuzzi tub, tiled shower, and walk-in closet. A second bedroom, full bathroom, updated kitchen with breakfast nook, formal dining room, and mud room round out the main level living space. The walkout lower level has a comfortable family room with double sliding doors to the backyard patio, a game room with wetbar, 2 additional bedrooms, a 3/4 bathroom, workshop or office space, laundry, and an area for your workouts. Outside is ready for all your spring and summer entertaining - upper level deck and lower level patio plus a spacious grassy yard for pets and littles to play. Lots of updates in this home include 12 new Andersen windows, new roof in 2022, main sewer line, kitchen appliances, AC, furnace, and water heater. Main level mudroom could be a potential laundry room for main level living. Great location with easy access to freeways, shopping, restaurants, parks and trails yet tucked among the trees in a truly peaceful setting. Security cameras on property.

Association Information

Association Fee:
175
Assoc Fee Includes:
Array
Fee Frequency:
Annually
Assoc Mgmt Comp:
First Service Residential
Assoc Mgmt Co Phone:
952-277-2716

Quick Specifications

Price :
$595,000
Status :
Closed
Property Type :
Residential
Beds :
4
Year Built :
1981
Approx. Sq. Ft :
3408
School District :
833
Taxes :
$ 6251
MLS# :
6573231
Association Fee :
175

Interior Features

Foundation Size :
1808
Fireplace Y:N :
2
Baths :
3
Bath Desc :
3/4 Basement,Double Sink,Full Primary,Private Primary,Main Floor Full Bath,Separate Tub & Shower

Lot and Location

PostalCity :
Washington
Zip Code :
55125
Directions :
Radio Drive to Pinehurst Road, go west on Pinehurst to the home. Home is located on the sidewalk side of the street. Ok to park in the driveway.
Complex/Development/Subd :
Woodbury Pines 2nd Add
Lot Description :
Many Trees, Underground Utilities
Lot Dimensions :
108x178
Road Frontage :
City Street, Curbs, Paved Streets, Sidewalks, Street Lights, Storm Sewer
Zoning :
Residential-Single Family
School District :
833
School District Phone :
651-425-6300

Structural Features

Class :
Residential
Basement :
Block, Daylight/Lookout Windows, Drain Tiled, Finished, Full, Sump Pump, Walkout
Exterior :
Brick/Stone, Wood Siding
Garage :
2
Accessibility Features :
None
Roof :
Age 8 Years or Less, Architectural Shingle, Asphalt
Sewer :
City Sewer/Connected
Water :
City Water/Connected

Financial Considerations

DPResource :
Y
Foreclosure Status :
No
Lender Owned :
No
Potential Short Sale :
No
Latitude :
44.930854
MLS# :
6573231
Style :
Single Family Residence
Complex/Development/Subd :
Woodbury Pines 2nd Add
Tax Amount :
$ 6251
Tax With Assessments :
6306.0000
Tax Year :
2025